Project Type
Luxury Builder Floor Project
Completion Date
September 2023
Location
Greater Kailash Enclave - Part 1
Plot size
416 sq.yds.
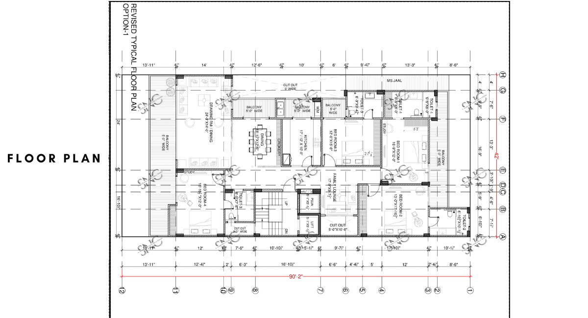
Experience luxury at its finest with our upcoming project in Greater Kailash Enclave - Part 1. This exquisite 4BHK duplex residence, situated on a spacious 450 sq.yd plot, offers unparalleled living in a British Victorian-themed setting. The project is
nearing completion and will feature complete project images and videos showcasing the meticulous craftsmanship and attention to detail. The duplex unit, spread across the basement and ground floor, boasts servant quarters, a powder
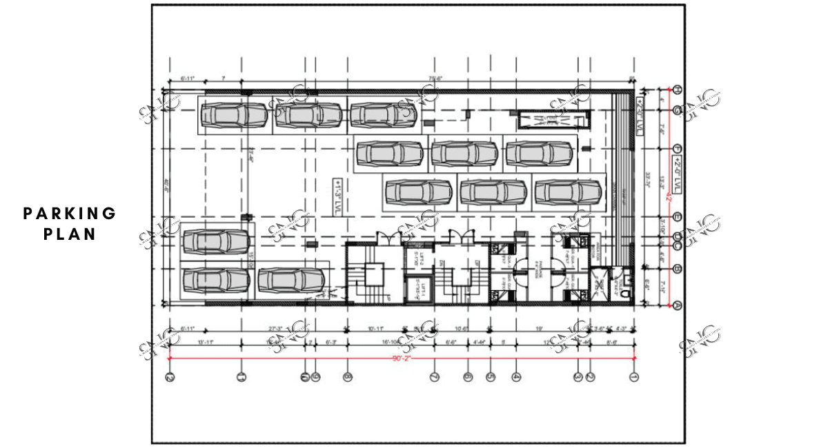
room, and a private lift for added convenience. Enjoy the elegance of a separate entrance and stilt parking, with individual lanes and gates for each floor. The terrace is a haven of relaxation with a garden, fountain, gazebo,
seating area, bar counter, separate guest room, and two well-appointed washrooms.
175
+
Completed Projects
300
+
Happy Clients
31
+
Qualified Members
25
+
Years Experiance
Project Goals
Creating an Exquisite 4BHK Duplex Residence with Luxurious Amenities
- British Victorian-themed facade.
- One Duplex unit with private lift.
- 4BHK layout with drawing, dining, and powder room.
- Stilt parking with individual lanes and gates for each floor with seperate servants quarters.
50 Words Subtext: Our goal for this project was to create an exquisite 4BHK duplex residence that offers luxury and comfort in every aspect. The residence features a British Victorian-themed exterior design, a spacious layout with separate servant quarters,
a private lift, and stilt parking with individual lanes and gates. The terrace is a serene oasis with a garden, fountain, gazebo, and well-appointed amenities.
Final Outcome of This Project
Luxurious 4BHK Duplex Residence with Exceptional Amenities
- Exquisite 4BHK duplex residence with elegant interiors.
- Separate servant quarters, drawing, dining, and powder room.
- British Victorian-themed exterior design.
- Contemporary and Modern designs
- Luxurious terrace with garden, fountain, gazebo, seating area, bar counter, guest room, and washrooms.
The final outcome of this project is a luxurious 4BHK duplex residence that exceeds expectations. The residence showcases elegant interiors, separate servant quarters, a spacious layout with drawing, dining, and a powder room. The British Victorian-themed
exterior design adds a touch of grandeur. With stilt parking, separate lanes and gates, and a magnificent terrace with well-appointed amenities, this residence offers a truly exceptional living experience.
Work With Us !
Have any upcoming project
If you have any upcoming construction projects, we'd love to hear from you. Our team is ready to discuss your ideas, offer expert advice, and provide a comprehensive plan tailored to your needs and budget. Together, let's build a foundation for success.
